🔔 Vous avez actuellement des candidatures en attente.



>
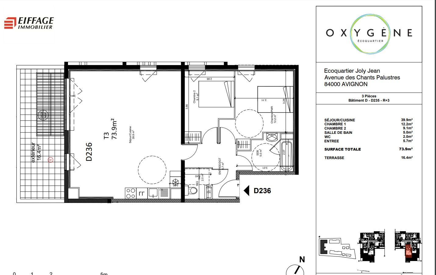
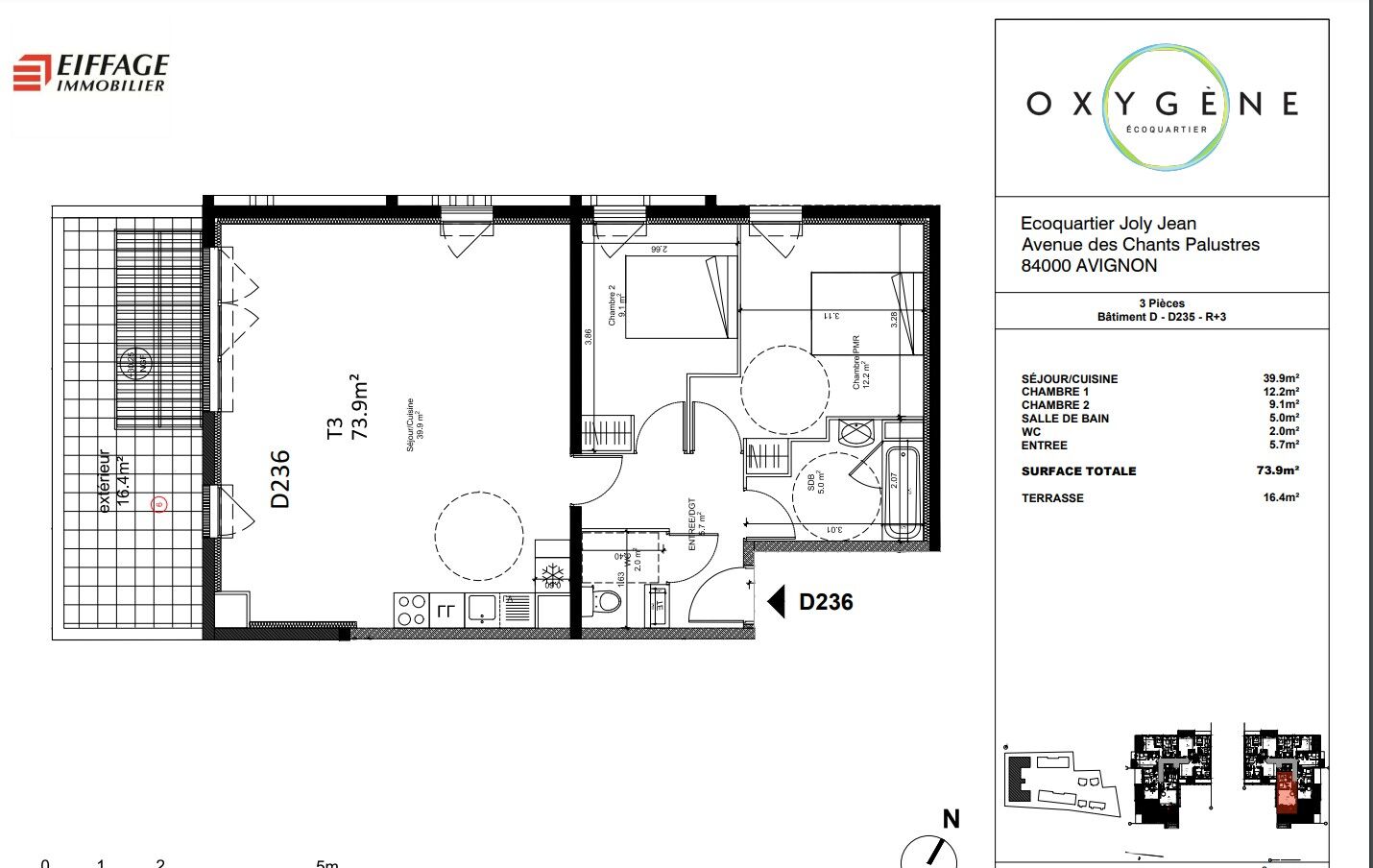
Au cœur de l'écoquartier JOLY JEAN, venez découvrir notre résidence intergénérationnelle pensée et conçue pour favoriser la rencontre et le lien social avec des espaces et jardins partagés ainsi qu'une salle commune. Nous souhaitons ainsi favoriser la mixité, l'implication des habitants et la solidarité entre toutes les générations. POUR VISITER, DEPOSEZ DES A PRESENT VOTRE DOSSIER SUR INLI.FR EN CLIQUANT SUR "CA M'INTÉRESSE".Au 3ème étage, T3 de 73.90 m² comprenant une entrée, un séjour/cuisine de 39.90 m² donnant sur une belle terrasse exposée OUEST de 16.4 m², 2 chambres de 9 et 12.2 m², une salle de bains de 5 m², WC séparé. Le logement dispose d'un stationnement en sous-sol. Logement disponible à partir du 19/12/2025. PAS D'HONORAIRES DE LOCATION.Soumis à plafond de ressources. Loyer payable d’avance.Garantie Visale acceptée.
< 50 A
51 à 90 B
91 à 150 C
151 à 230 D
231 à 330 E
331 à 450 F
> 450 G
Unité de mesure exprimé en KWhEP/m².an
< 5 A
6 à 10 B
11 à 20 C
21 à 35 D
36 à 55 E
56 à 80 F
> 80 G
Unité de mesure exprimé en kgegCO2/m².an
< 5 A
6 à 10 B
11 à 20 C
21 à 35 D
36 à 55 E
56 à 80 F
> 80 G
Unité de mesure exprimé en kgegCO2/m².an
< 50 A
51 à 90 B
91 à 150 C
151 à 230 D
231 à 330 E
331 à 450 F
> 450 G
Unité de mesure exprimé en KWhEP/m².an
Les informations sur les risques auxquels ce bien est exposé sont disponibles sur le site
Géorisques
https://www.georisques.gouv.fr
Enregistrez vos annonces préférées dans la liste de vos favoris.
