🔔 Vous avez actuellement des candidatures en attente.



>
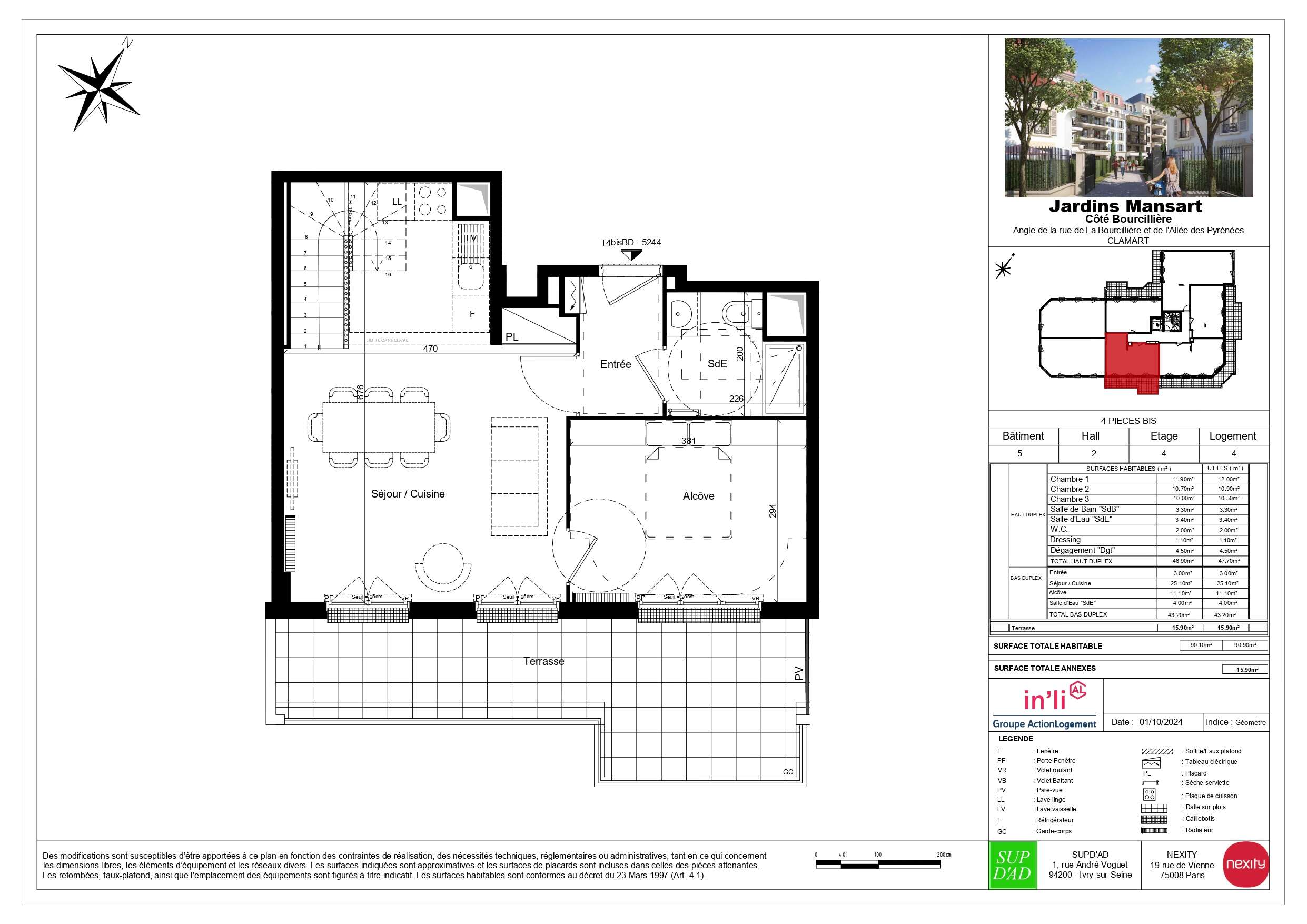
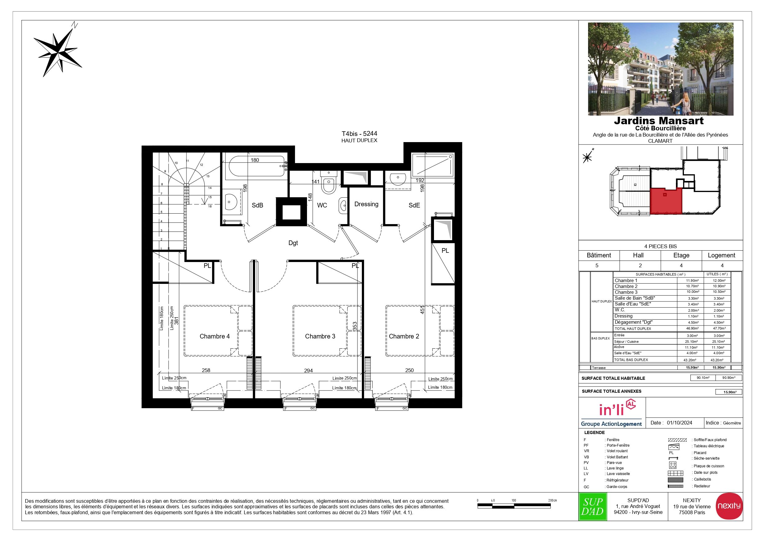
CO- LOCATION POSSIBLEAppartement neuf duplex de 90,20 m² au 4ème étage qui se compose d'une entrée avec rangement , un séjour de 25,20m² avec cuisine ouverte donnant accès à une terrasse de 15,90m² exposé sud. Quatre chambres de 11,90m², 10,70m², 11,10m² et 10,00m². Une salle de bain, deux salles d'eau et WC séparé. Une place de stationnement en intérieur. Chauffage collectif au gaz. NB : photos des logements non contractuelles, en illustration des prestations types..Pour votre information : Conformément à l’indice de référence des loyers (IRL), le loyer affiché sera révisé de 1,04 % à compter du 1er janvier 2026.
Accéder à la
visite vidéo
< 50 A
51 à 90 B
91 à 150 C
151 à 230 D
231 à 330 E
331 à 450 F
> 450 G
Unité de mesure exprimé en KWhEP/m².an
< 5 A
6 à 10 B
11 à 20 C
21 à 35 D
36 à 55 E
56 à 80 F
> 80 G
Unité de mesure exprimé en kgegCO2/m².an
< 5 A
6 à 10 B
11 à 20 C
21 à 35 D
36 à 55 E
56 à 80 F
> 80 G
Unité de mesure exprimé en kgegCO2/m².an
< 50 A
51 à 90 B
91 à 150 C
151 à 230 D
231 à 330 E
331 à 450 F
> 450 G
Unité de mesure exprimé en KWhEP/m².an
Les informations sur les risques auxquels ce bien est exposé sont disponibles sur le site
Géorisques
https://www.georisques.gouv.fr
Enregistrez vos annonces préférées dans la liste de vos favoris.