🔔 Vous avez actuellement des candidatures en attente.



Immeuble neuf. Cristal Clichy est une résidence innovante avec 175 m² d'espaces communs partagés : salle de sport, espace de convivialité, salle de télétravail, salle de jeux. Des Services pour faciliter votre vie : Assurance Multirisque habitation, casiers connectés pour recevoir ses colis à la maison, tout est inclus dans le loyer.
Les cuisines sont entièrement meublées et équipées, luminaires ainsi que tringles à rideaux déjà posées dans l'appartement.
En option, nous pouvons vous proposer un logement entièrement meublé (location au mois, tarifs selon la typologie du logement).
Très bien situé au pied de l'immeuble la station Saint Ouen :Métro lignes 13 & 14 ainsi que le RER C à 300m.
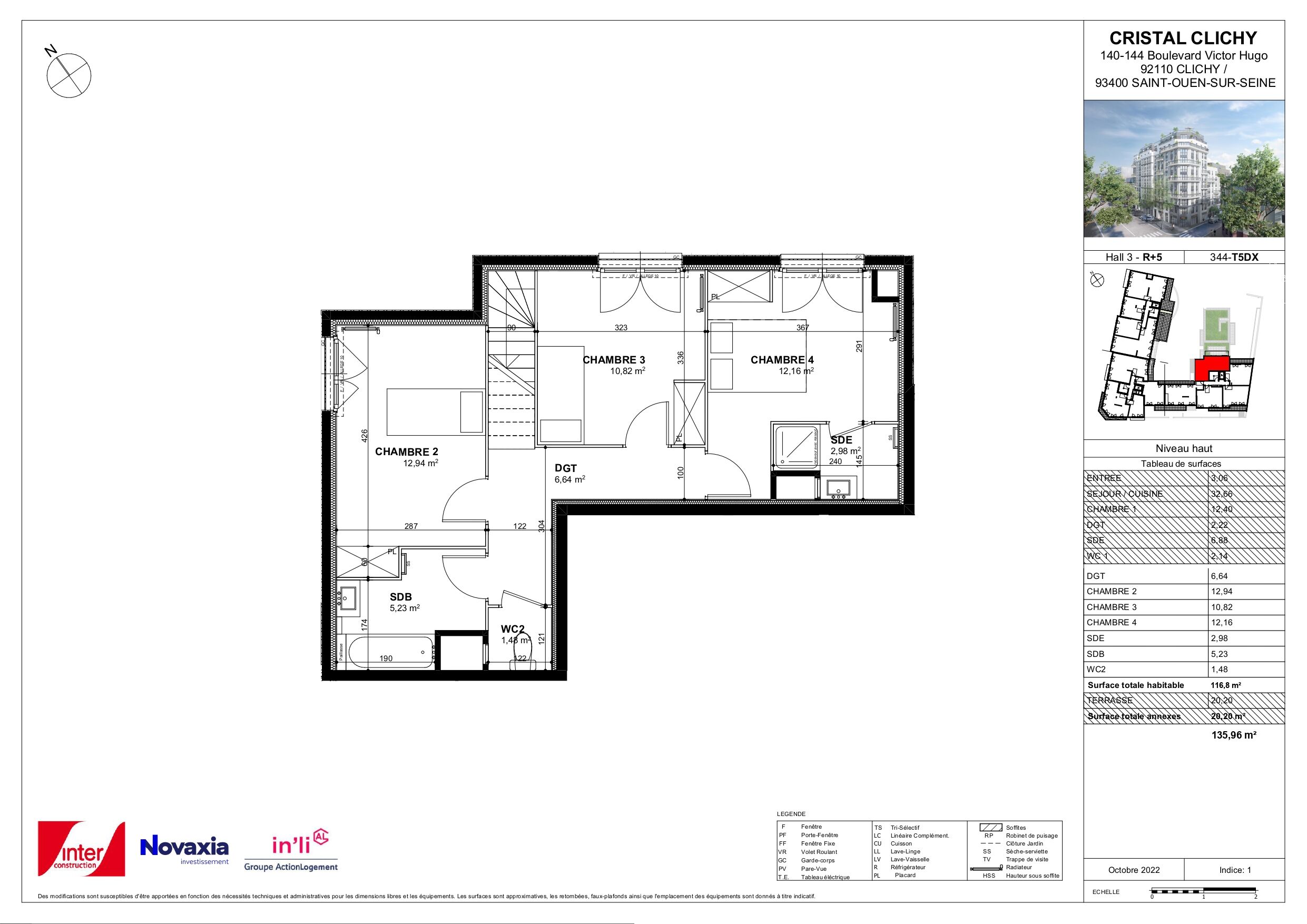
Livraison prévue AVRIL 2026un duplex de 111,65m² au 4ème étage avec ascenseur, première occupation, chauffage collectif. Il comprend une entrée, une cuisine (aménagée et équipée) ouverte sur le séjour de 32,97m² avec accès à une terrasse de 19,16m², une chambre avec placard de 12,29m² avec une salle d'eau attenante de 6,81m² et des WC séparés.A l'étage trois chambres avec placard de 12,94m², 10,82m² et 12,16m² avec une salle d'eau attenante de 2,98m², une salle de bains de 5,23m² et des WC séparés. Une place de stationnement est comprise dans le loyer. Réservation sur plan uniquement.
Accéder à la visite vidéo
< 50 A
51 à 90 B
91 à 150 C
151 à 230 D
231 à 330 E
331 à 450 F
> 450 G
Unité de mesure exprimé en KWhEP/m².an
< 5 A
6 à 10 B
11 à 20 C
21 à 35 D
36 à 55 E
56 à 80 F
> 80 G
Unité de mesure exprimé en kgegCO2/m².an
< 5 A
6 à 10 B
11 à 20 C
21 à 35 D
36 à 55 E
56 à 80 F
> 80 G
Unité de mesure exprimé en kgegCO2/m².an
< 50 A
51 à 90 B
91 à 150 C
151 à 230 D
231 à 330 E
331 à 450 F
> 450 G
Unité de mesure exprimé en KWhEP/m².an
Les informations sur les risques auxquels ce bien est exposé sont disponibles sur le site
Géorisques
https://www.georisques.gouv.fr
Enregistrez vos annonces préférées dans la liste de vos favoris.