🔔 Vous avez actuellement des candidatures en attente.

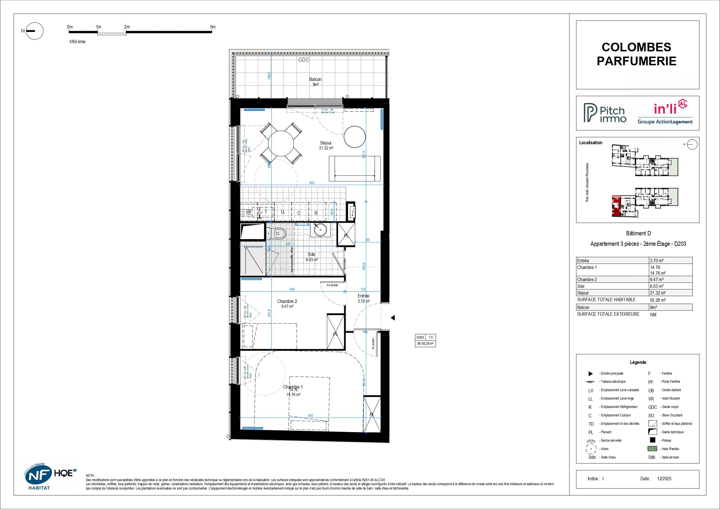
Sans frais d'agence. Votre prochaine adresse vous attend à Colombes (livraison prévue fin mars 2026). La résidence se situe au 76 Rue Jean-Jacques Rousseau, proche de toutes commodités (supermarchés, crèches, écoles, collèges, lycées, infrastructures sportives et de santé). Vous bénéficierez également de la proximité des transports (la ligne J station « Le Stade » vous mènera en 14 minutes à Paris Saint-Lazare). À louer 3 pièces de 55,28m² situé au 2ème étage avec ascenseur, disponible début avril, se répartit comme suit : entrée avec placard, séjour/cuisine de 21,32m² ouvrant sur balcon,, exposition Ouest; chauffage collectif, parking en sous-sol. Réservation sur plan uniquement (pas de visite)
Accéder à la visite vidéo
< 50 A
51 à 90 B
91 à 150 C
151 à 230 D
231 à 330 E
331 à 450 F
> 450 G
Unité de mesure exprimé en KWhEP/m².an
< 5 A
6 à 10 B
11 à 20 C
21 à 35 D
36 à 55 E
56 à 80 F
> 80 G
Unité de mesure exprimé en kgegCO2/m².an
< 5 A
6 à 10 B
11 à 20 C
21 à 35 D
36 à 55 E
56 à 80 F
> 80 G
Unité de mesure exprimé en kgegCO2/m².an
< 50 A
51 à 90 B
91 à 150 C
151 à 230 D
231 à 330 E
331 à 450 F
> 450 G
Unité de mesure exprimé en KWhEP/m².an
Les informations sur les risques auxquels ce bien est exposé sont disponibles sur le site
Géorisques
https://www.georisques.gouv.fr
Enregistrez vos annonces préférées dans la liste de vos favoris.