🔔 Vous avez actuellement des candidatures en attente.



>
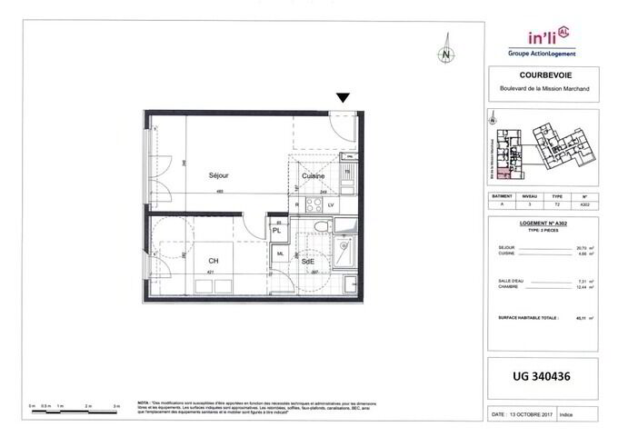
EXCLUSIVITÉ Sans frais d'agence, direct bailleur In'li. À 35 m du tramway Faubourg de l'Arche (ligne T2), nous vous présentons à louer à COURBEVOIE (92400), cet appartement de 2 pièces plein est de 44,72 m². Il se situe au 3e étage d'un immeuble récent de six étages avec ascenseur. Le bâtiment a un gardien. Il s'organise comme suit : une pièce à vivre, une chambre, une cuisine ouverte et une salle d'eau. Le chauffage de la résidence est collectif alimenté au gaz. Un local poussettes et un local vélos sont disponibles dans le bâtiment. Il est mis en location avec une place de parking. Proche de toutes commodités..Pour votre information : Conformément à l’indice de référence des loyers (IRL), le loyer affiché sera révisé de 1,04 % à compter du 1er janvier 2026.
< 50 A
51 à 90 B
91 à 150 C
151 à 230 D
231 à 330 E
331 à 450 F
> 450 G
Unité de mesure exprimé en KWhEP/m².an
< 5 A
6 à 10 B
11 à 20 C
21 à 35 D
36 à 55 E
56 à 80 F
> 80 G
Unité de mesure exprimé en kgegCO2/m².an
< 5 A
6 à 10 B
11 à 20 C
21 à 35 D
36 à 55 E
56 à 80 F
> 80 G
Unité de mesure exprimé en kgegCO2/m².an
< 50 A
51 à 90 B
91 à 150 C
151 à 230 D
231 à 330 E
331 à 450 F
> 450 G
Unité de mesure exprimé en KWhEP/m².an
Les informations sur les risques auxquels ce bien est exposé sont disponibles sur le site
Géorisques
https://www.georisques.gouv.fr
Enregistrez vos annonces préférées dans la liste de vos favoris.