🔔 Vous avez actuellement des candidatures en attente.



>
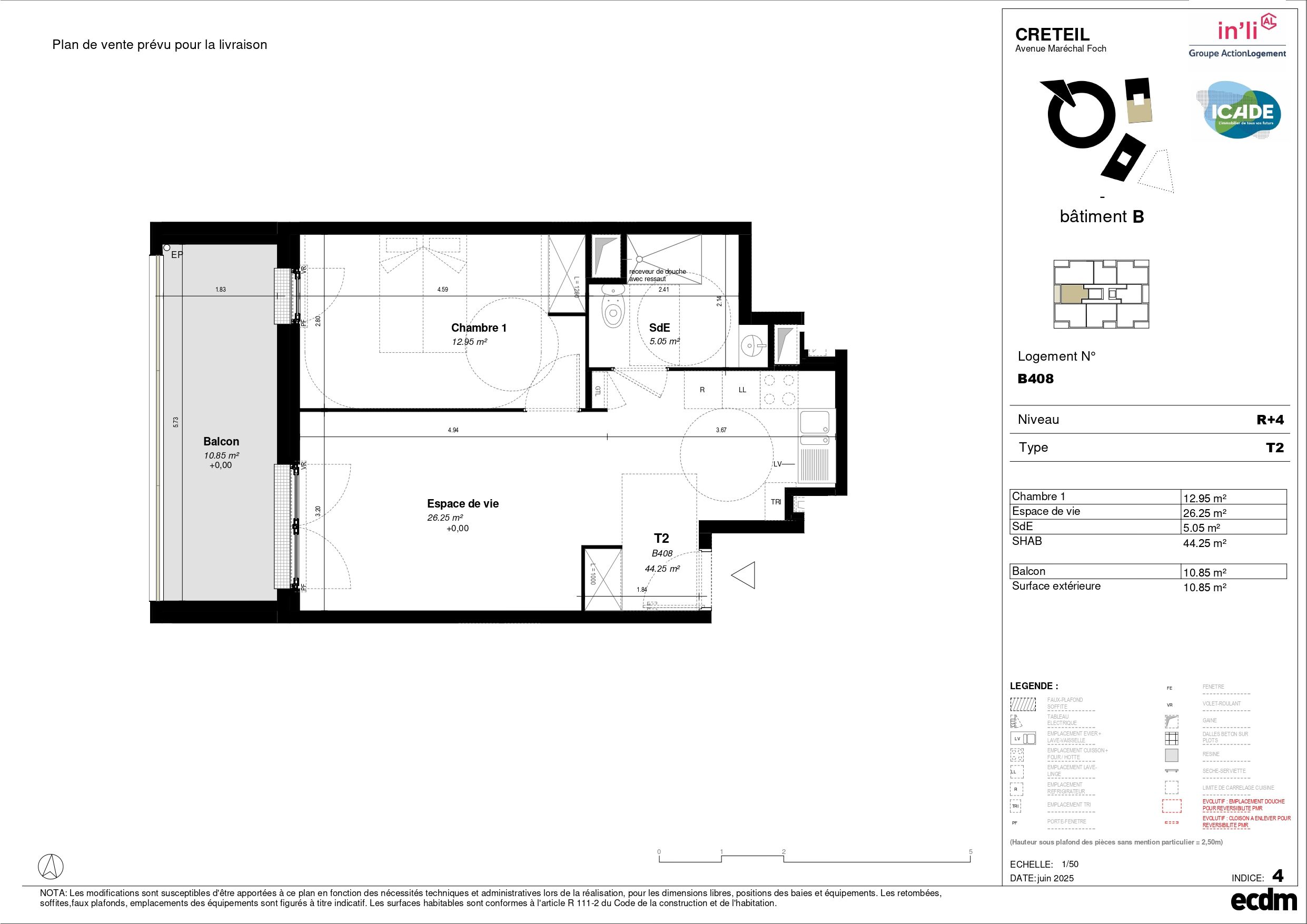
Sans frais d'agence, direct bailleur In'li. Résidence neuve située au 117/119 Avenue du Maréchal Foch à Créteil, livraison prévue mi-décembre 2025. Vous pourrez rejoindre Paris gare de Lyon en 9 minutes via le RER D en gare de Le Vert de Maisons. À louer appartement F2 de 44,25 m² au 4ème étage, qui se compose d'une pièce à vivre de 26,25 m² (entrée avec placard, cuisine ouverte et séjour), donnant sur un grand balcon de 10,85 m² exposé Ouest, puis d'une chambre de 12,95 m² avec accès au balcon, et d'une salle de douche avec WC. Un parking complète cette offre. Chauffage collectif inclus dans les charges. NB : photos non contractuelles, en illustration des prestations types. Réservation sur plan uniquement, sans visites.
Accéder à la
visite vidéo
< 50 A
51 à 90 B
91 à 150 C
151 à 230 D
231 à 330 E
331 à 450 F
> 450 G
Unité de mesure exprimé en KWhEP/m².an
< 5 A
6 à 10 B
11 à 20 C
21 à 35 D
36 à 55 E
56 à 80 F
> 80 G
Unité de mesure exprimé en kgegCO2/m².an
< 5 A
6 à 10 B
11 à 20 C
21 à 35 D
36 à 55 E
56 à 80 F
> 80 G
Unité de mesure exprimé en kgegCO2/m².an
< 50 A
51 à 90 B
91 à 150 C
151 à 230 D
231 à 330 E
331 à 450 F
> 450 G
Unité de mesure exprimé en KWhEP/m².an
Les informations sur les risques auxquels ce bien est exposé sont disponibles sur le site
Géorisques
https://www.georisques.gouv.fr
Enregistrez vos annonces préférées dans la liste de vos favoris.