🔔 Vous avez actuellement des candidatures en attente.



>
Sans frais d'agence, direct bailleur In'li. Résidence neuve située au 117/119 Avenue du Maréchal Foch à Créteil, livraison le 09/12/2025. Vous pourrez rejoindre Paris gare de Lyon en 9 minutes via le RER D en gare de Le Vert de Maisons. À louer
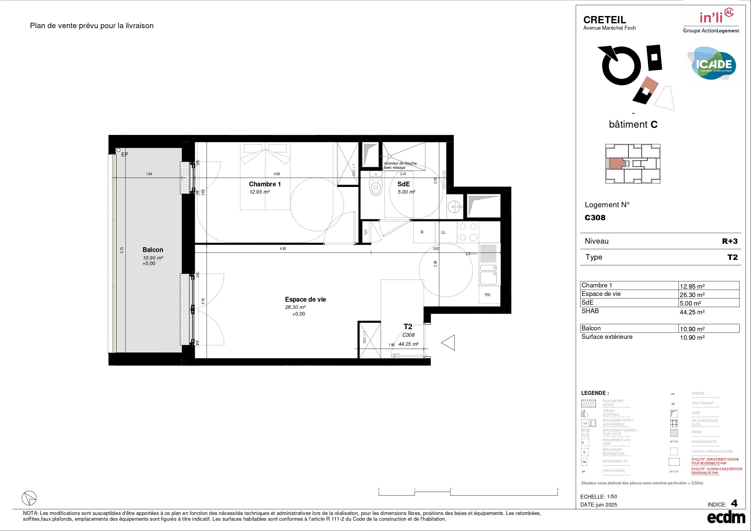
Conformément à l’indice de référence des loyers (IRL), le loyer affiché sera révisé de 1,04 % à compter du 1er janvier 2026. Acceptation sur plan uniquement (PAS DE VISITE) T2 de 44.25 m² au 3ème étage avec ascenseur comprenant un séjour avec cuisine ouverte et aménagée de 26.30m² donnant sur un balcon, 1 chambre de 12.95 m² disposant de rangements et une salle d'eau avec toilettes. Le chauffage est collectif au gaz. Une place de parking en sous-sol complète ce bien.NB : photos des logements non contractuelles, en illustration des prestations types.
Accéder à la
visite vidéo
< 50 A
51 à 90 B
91 à 150 C
151 à 230 D
231 à 330 E
331 à 450 F
> 450 G
Unité de mesure exprimé en KWhEP/m².an
< 5 A
6 à 10 B
11 à 20 C
21 à 35 D
36 à 55 E
56 à 80 F
> 80 G
Unité de mesure exprimé en kgegCO2/m².an
< 5 A
6 à 10 B
11 à 20 C
21 à 35 D
36 à 55 E
56 à 80 F
> 80 G
Unité de mesure exprimé en kgegCO2/m².an
< 50 A
51 à 90 B
91 à 150 C
151 à 230 D
231 à 330 E
331 à 450 F
> 450 G
Unité de mesure exprimé en KWhEP/m².an
Les informations sur les risques auxquels ce bien est exposé sont disponibles sur le site
Géorisques
https://www.georisques.gouv.fr
Enregistrez vos annonces préférées dans la liste de vos favoris.