🔔 Vous avez actuellement des candidatures en attente.
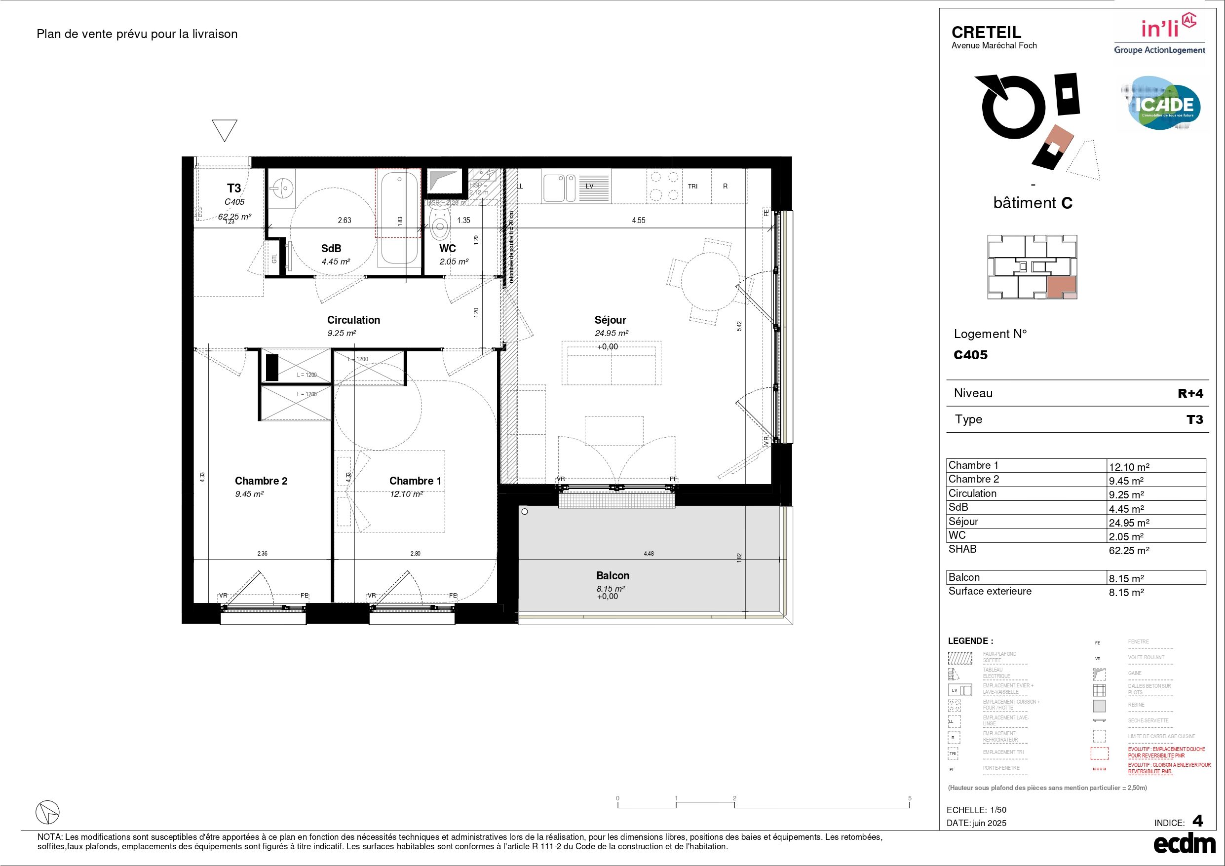
Sans frais d'agence, direct bailleur in'li. Résidence située au 117/119 Avenue du Maréchal Foch à Créteil, livraison prévue Mi-décembre 2025. Vous pourrez rejoindre Paris gare de Lyon en 9 minutes via le RER D en gare de Le Vert de Maisons. À louerun appartement de 62,25m² au 4ème étage avec ascenseur, première occupation, chauffage collectif. Il comprend une entrée avec rangement de 9,25m², une cuisine ouverte sur le séjour de 24,95m² avec accès à un balcon de 8,25m² exposé Sud, deux chambres avec placard de 12,10m² et 9,45m², une salle de bains de 4,45m² et des WC séparés. Une place de stationnement est comprise dans le loyer. Réservation sur plan uniquement.
Accéder à la
visite vidéo
< 50 A
51 à 90 B
91 à 150 C
151 à 230 D
231 à 330 E
331 à 450 F
> 450 G
Unité de mesure exprimé en KWhEP/m².an
< 5 A
6 à 10 B
11 à 20 C
21 à 35 D
36 à 55 E
56 à 80 F
> 80 G
Unité de mesure exprimé en kgegCO2/m².an
< 5 A
6 à 10 B
11 à 20 C
21 à 35 D
36 à 55 E
56 à 80 F
> 80 G
Unité de mesure exprimé en kgegCO2/m².an
< 50 A
51 à 90 B
91 à 150 C
151 à 230 D
231 à 330 E
331 à 450 F
> 450 G
Unité de mesure exprimé en KWhEP/m².an
Les informations sur les risques auxquels ce bien est exposé sont disponibles sur le site
Géorisques
https://www.georisques.gouv.fr
Enregistrez vos annonces préférées dans la liste de vos favoris.