🔔 Vous avez actuellement des candidatures en attente.



>
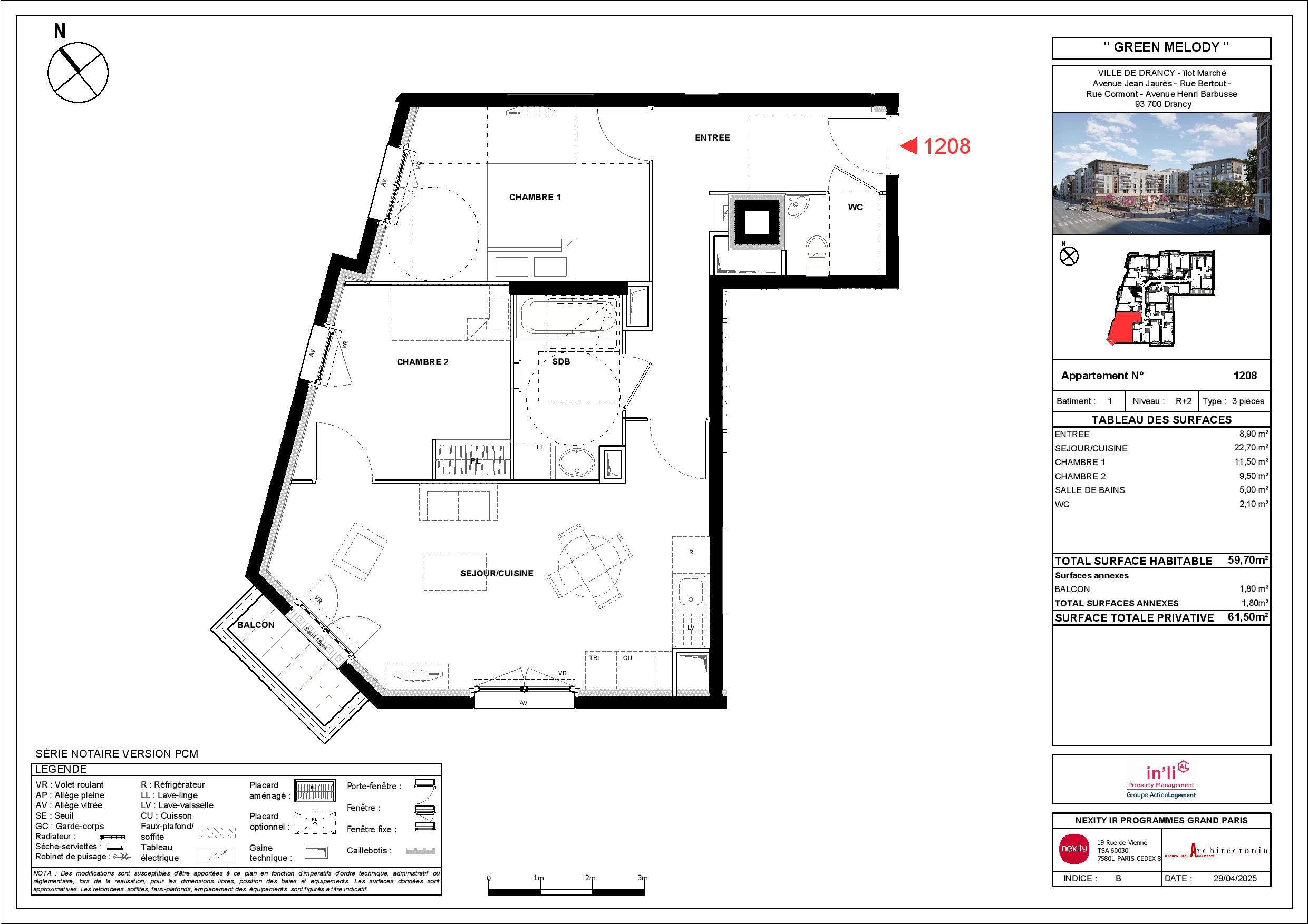
appartement F3 de 59,70 m², au 2ème étage, qui se compose d'une entrée, puis d'une pièce principale de 22,70 m² (séjour et cuisine ouverte), donnant sur un balcon de 1,80 m² exposé Ouest. Il dispose de 2 chambres (9,50 et 11,50 m²) d'une salle de bain et de WC séparés. Un parking complète cette offre. Chauffage collectif inclus dans les charges. NB : photos non contractuelles, en illustration des prestations types. Acceptation du logement sur plan uniquement, sans visites.
Accéder à la
visite vidéo
< 50 A
51 à 90 B
91 à 150 C
151 à 230 D
231 à 330 E
331 à 450 F
> 450 G
Unité de mesure exprimé en KWhEP/m².an
< 5 A
6 à 10 B
11 à 20 C
21 à 35 D
36 à 55 E
56 à 80 F
> 80 G
Unité de mesure exprimé en kgegCO2/m².an
< 5 A
6 à 10 B
11 à 20 C
21 à 35 D
36 à 55 E
56 à 80 F
> 80 G
Unité de mesure exprimé en kgegCO2/m².an
< 50 A
51 à 90 B
91 à 150 C
151 à 230 D
231 à 330 E
331 à 450 F
> 450 G
Unité de mesure exprimé en KWhEP/m².an
Les informations sur les risques auxquels ce bien est exposé sont disponibles sur le site
Géorisques
https://www.georisques.gouv.fr
Enregistrez vos annonces préférées dans la liste de vos favoris.