🔔 Vous avez actuellement des candidatures en attente.

Sans frais d’agence, découvrez votre futur logement à Gagny, disponible fin Juin 2026.
Idéalement située 5 rue du 8 Mai 1945, la résidence offre un cadre de vie privilégié, à proximité immédiate de toutes les commodités essentielles :supermarchés,écoles, collèges et lycées,équipements sportifs,mairie,parc forestier du Bois de l’Étoile.
Vous profiterez également d’un accès facilité aux transports.
?? La station Gagny Centre – RER E se trouve à quelques minutes et vous relie à Rosa Parks en seulement 20 minutes.
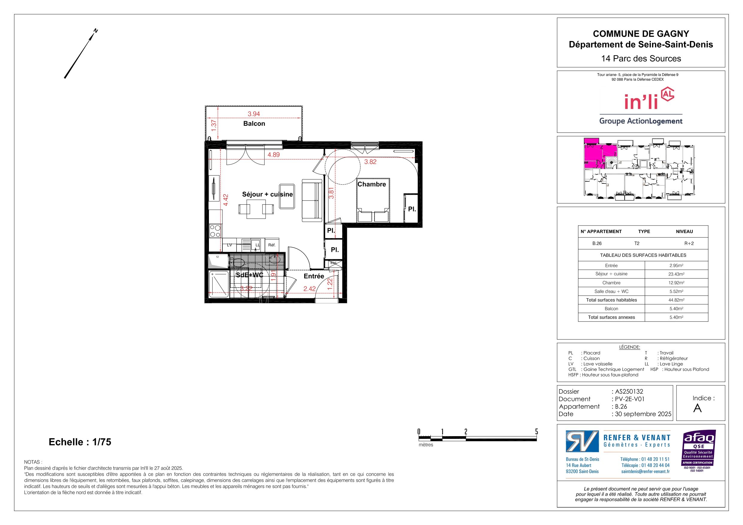
Un emplacement idéal pour concilier qualité de vie, tranquillité et mobilité.Appartement 2 pièces de 44,82m² qui se compose d'une entrée, un séjour avec cuisine ouverte aménagée de 23,43m² qui donne sur un balcon de 5,40m². 1 chambre de 12,92m². Une salle de bain et WC. Chauffage collectif inclus dans les charges. Une place de stationnement. NB : photos des logements non contractuelles, en illustration des prestations types.Réservation sur plan uniquement SANS VISITES.
Accéder à la visite vidéo
< 50 A
51 à 90 B
91 à 150 C
151 à 230 D
231 à 330 E
331 à 450 F
> 450 G
Unité de mesure exprimé en KWhEP/m².an
< 5 A
6 à 10 B
11 à 20 C
21 à 35 D
36 à 55 E
56 à 80 F
> 80 G
Unité de mesure exprimé en kgegCO2/m².an
< 5 A
6 à 10 B
11 à 20 C
21 à 35 D
36 à 55 E
56 à 80 F
> 80 G
Unité de mesure exprimé en kgegCO2/m².an
< 50 A
51 à 90 B
91 à 150 C
151 à 230 D
231 à 330 E
331 à 450 F
> 450 G
Unité de mesure exprimé en KWhEP/m².an
Les informations sur les risques auxquels ce bien est exposé sont disponibles sur le site
Géorisques
https://www.georisques.gouv.fr
Enregistrez vos annonces préférées dans la liste de vos favoris.