🔔 Vous avez actuellement des candidatures en attente.



>
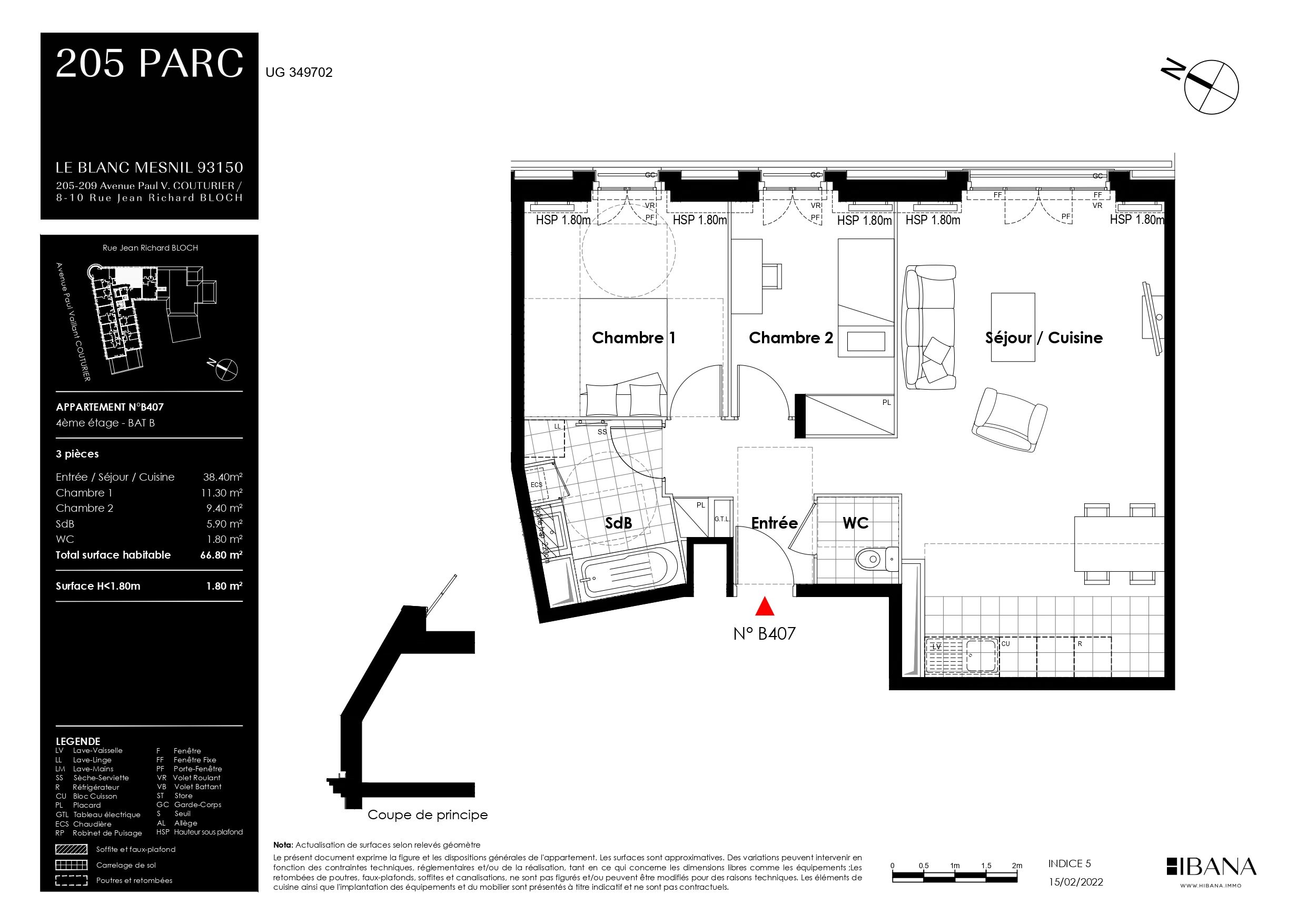
Exclusivité, appartement T3 à LE BLANC MESNIL. Sans frais d'agence. Cet appartement comprend un séjour, une cuisine séparée. Situé dans un immeuble de 4 étages, construit en 2022. Un(e) régisseur(se) est présent(e) au sein de la copropriété. Ascenseur disponible. Chauffage individuel. Une place de parking incluse. De nombreux établissements scolaires à proximité. Desservi par plusieurs lignes de RER, avec les gares de Drancy et Blanc-Mesnil accessibles à environ 1,2 km. Proche des grands axes routiers. Commerces accessibles dans les environs.
Accéder à la visite vidéo
< 50 A
51 à 90 B
91 à 150 C
151 à 230 D
231 à 330 E
331 à 450 F
> 450 G
Unité de mesure exprimé en KWhEP/m².an
< 5 A
6 à 10 B
11 à 20 C
21 à 35 D
36 à 55 E
56 à 80 F
> 80 G
Unité de mesure exprimé en kgegCO2/m².an
< 5 A
6 à 10 B
11 à 20 C
21 à 35 D
36 à 55 E
56 à 80 F
> 80 G
Unité de mesure exprimé en kgegCO2/m².an
< 50 A
51 à 90 B
91 à 150 C
151 à 230 D
231 à 330 E
331 à 450 F
> 450 G
Unité de mesure exprimé en KWhEP/m².an
Les informations sur les risques auxquels ce bien est exposé sont disponibles sur le site
Géorisques
https://www.georisques.gouv.fr
Enregistrez vos annonces préférées dans la liste de vos favoris.