🔔 Vous avez actuellement des candidatures en attente.

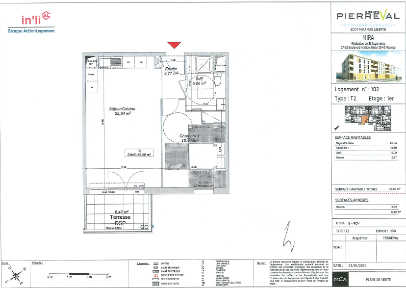
PROGRAMME NEUF DONT LA LIVRAISON EST PREVUE POUR MI-AVRIL SOUS RESERVE DE LA LEVEE DE TOUS TRAVAUX D'ACHEVEMENTMIRAMAS13140-27/33 BD ARISTIDE BRIANDT2-44.58m² au 1er étage avec ascenseur, comprenant : Entrée, séjour ouvert sur coin cuisine aménagée non équipée avec accès terrasse, une chambre et salle d'eau avec WC. Logement disponible avec une place de stationnement privative.www.georisques.gouv.frPAS DE FRAIS D'HONORAIRES et LOYERS PAYABLES D'AVANCE-GARANTIE VISALE ACCEPTEE.VOUS POUVEZ EGALEMENT CONSULTER NOS ANNONCES ET CREER DIRECTEMENT VOTRE ESPACE EN LIGNE SUR LE SITE INLI.FR
< 50 A
51 à 90 B
91 à 150 C
151 à 230 D
231 à 330 E
331 à 450 F
> 450 G
Unité de mesure exprimé en KWhEP/m².an
< 5 A
6 à 10 B
11 à 20 C
21 à 35 D
36 à 55 E
56 à 80 F
> 80 G
Unité de mesure exprimé en kgegCO2/m².an
< 5 A
6 à 10 B
11 à 20 C
21 à 35 D
36 à 55 E
56 à 80 F
> 80 G
Unité de mesure exprimé en kgegCO2/m².an
< 50 A
51 à 90 B
91 à 150 C
151 à 230 D
231 à 330 E
331 à 450 F
> 450 G
Unité de mesure exprimé en KWhEP/m².an
Les informations sur les risques auxquels ce bien est exposé sont disponibles sur le site
Géorisques
https://www.georisques.gouv.fr
Enregistrez vos annonces préférées dans la liste de vos favoris.