🔔 Vous avez actuellement des candidatures en attente.

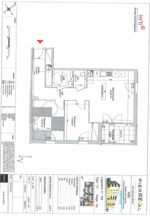
PROGRAMME NEUF DONT LA LIVRAISON EST PREVUE POUR MI-AVRIL SOUS RESERVE DE LA LEVEE DE TOUS TRAVAUX D'ACHEVEMENTMIRAMAS13140-27/33 BD ARISTIDE BRIANDT3-65.15m² au 1er étage avec ascenseur, comprenant : Entrée desservant sur pièce à vivre et coin cuisine aménagée non équipée avec accès terrasse, 2 chambres, dégagement, salle d'eau et WC indpt. Logement disponible avec une place de stationnement privative.www.georisques.gouv.frPAS DE FRAIS D'HONORAIRES et LOYERS PAYABLES D'AVANCE-GARANTIE VISALE ACCEPTEE.VOUS POUVEZ EGALEMENT CONSULTER NOS ANNONCES ET CREER DIRECTEMENT VOTRE ESPACE EN LIGNE SUR LE SITE INLI.FR
< 50 A
51 à 90 B
91 à 150 C
151 à 230 D
231 à 330 E
331 à 450 F
> 450 G
Unité de mesure exprimé en KWhEP/m².an
< 5 A
6 à 10 B
11 à 20 C
21 à 35 D
36 à 55 E
56 à 80 F
> 80 G
Unité de mesure exprimé en kgegCO2/m².an
< 5 A
6 à 10 B
11 à 20 C
21 à 35 D
36 à 55 E
56 à 80 F
> 80 G
Unité de mesure exprimé en kgegCO2/m².an
< 50 A
51 à 90 B
91 à 150 C
151 à 230 D
231 à 330 E
331 à 450 F
> 450 G
Unité de mesure exprimé en KWhEP/m².an
Les informations sur les risques auxquels ce bien est exposé sont disponibles sur le site
Géorisques
https://www.georisques.gouv.fr
Enregistrez vos annonces préférées dans la liste de vos favoris.