🔔 Vous avez actuellement des candidatures en attente.



>
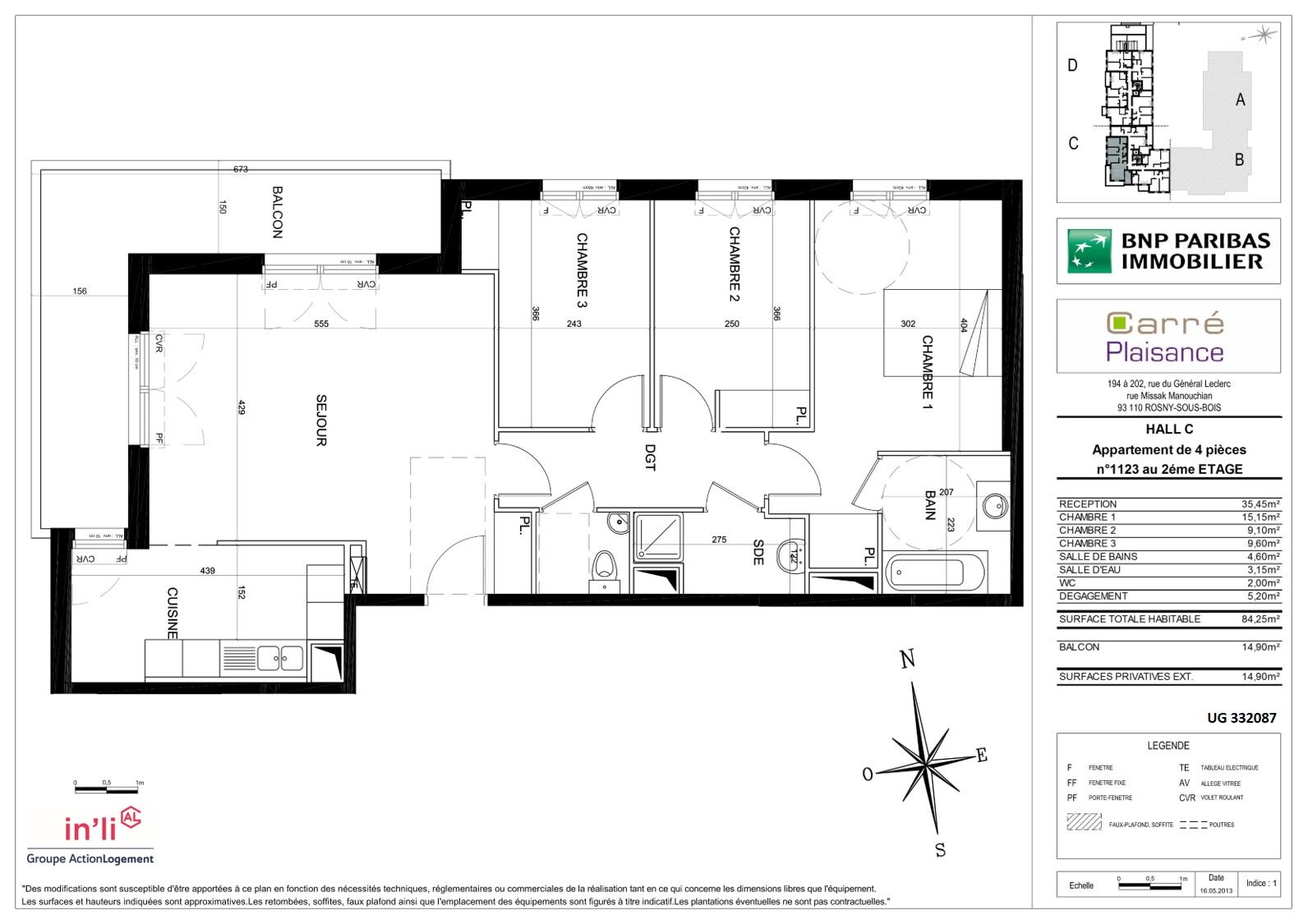
Exclusivité à Rosny-sous-Bois, appartement T4 de 84,22 m² Sans frais d'agence, direct bailleur In'li. L'appartement comprend un salon spacieux et trois chambres bien distinctes. Situé au 2e étage d’un immeuble moderne de 4 étages construit en 2014, avec ascenseur. Chauffage collectif. Une place de parking privative. À proximité immédiate : commerces variés. Plusieurs établissements scolaires accessibles à pied. Grands axes routiers à courte distance. Côté transports : RER E (station Rosny-Sous-Bois à environ 1 km) et RER A (station Val-de-Fontenay à 1,3 km)..Pour votre information : Conformément à l’indice de référence des loyers (IRL), le loyer affiché sera révisé de 1,04 % à compter du 1er janvier 2026.
< 50 A
51 à 90 B
91 à 150 C
151 à 230 D
231 à 330 E
331 à 450 F
> 450 G
Unité de mesure exprimé en KWhEP/m².an
< 5 A
6 à 10 B
11 à 20 C
21 à 35 D
36 à 55 E
56 à 80 F
> 80 G
Unité de mesure exprimé en kgegCO2/m².an
< 5 A
6 à 10 B
11 à 20 C
21 à 35 D
36 à 55 E
56 à 80 F
> 80 G
Unité de mesure exprimé en kgegCO2/m².an
< 50 A
51 à 90 B
91 à 150 C
151 à 230 D
231 à 330 E
331 à 450 F
> 450 G
Unité de mesure exprimé en KWhEP/m².an
Les informations sur les risques auxquels ce bien est exposé sont disponibles sur le site
Géorisques
https://www.georisques.gouv.fr
Enregistrez vos annonces préférées dans la liste de vos favoris.