🔔 Vous avez actuellement des candidatures en attente.


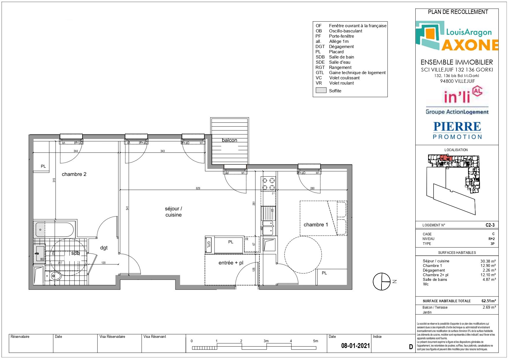
T3 de 60.23 m2 au 4ème étage avec ascenseur, comprenant une entrée avec des rangements, un séjour avec cuisine ouverte de 25.26 m2 donnant sur un balcon, 2 chambres de 12.40 m2 et 10.69 m2, dont l'une avec un dressing, une salle de bain avec toilettes. le chauffage collectif au gaz est inclus dans le loyer. Une place de parking en sous-sol complète ce bien. Le logement est soumis au plafond de ressources LI.
Accéder à la visite vidéo
< 50 A
51 à 90 B
91 à 150 C
151 à 230 D
231 à 330 E
331 à 450 F
> 450 G
Unité de mesure exprimé en KWhEP/m².an
< 5 A
6 à 10 B
11 à 20 C
21 à 35 D
36 à 55 E
56 à 80 F
> 80 G
Unité de mesure exprimé en kgegCO2/m².an
< 5 A
6 à 10 B
11 à 20 C
21 à 35 D
36 à 55 E
56 à 80 F
> 80 G
Unité de mesure exprimé en kgegCO2/m².an
< 50 A
51 à 90 B
91 à 150 C
151 à 230 D
231 à 330 E
331 à 450 F
> 450 G
Unité de mesure exprimé en KWhEP/m².an
Les informations sur les risques auxquels ce bien est exposé sont disponibles sur le site
Géorisques
https://www.georisques.gouv.fr
Enregistrez vos annonces préférées dans la liste de vos favoris.