🔔 Vous avez actuellement des candidatures en attente.



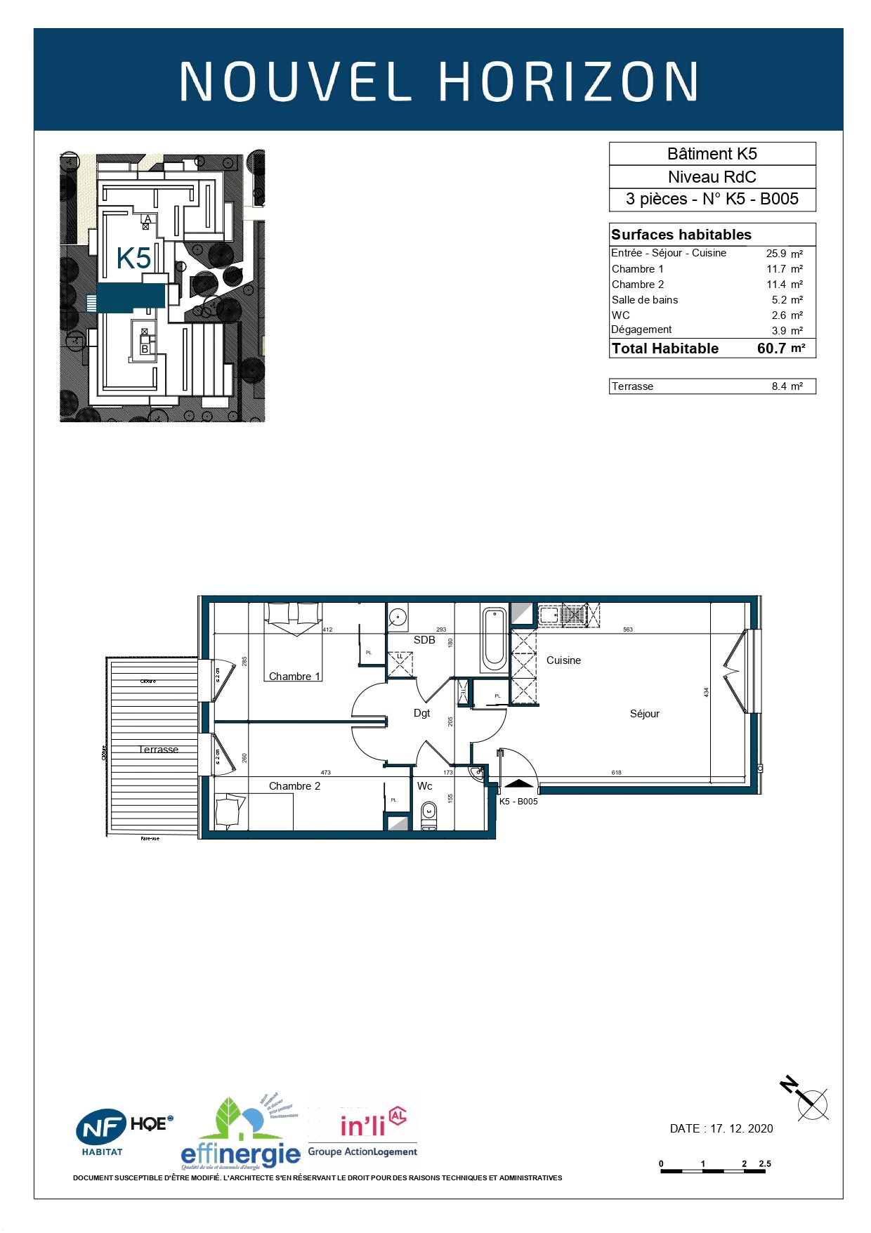
Exclusivité à Colombes, appartement T3 avec terrasse. Sans frais d'agence. Ce bien comprend un séjour, deux chambres et une cuisine ouverte. La salle de bains et un WC séparé complètent ce logement. Situé au rez-de-chaussée d'un immeuble récent construit en 2021 avec ascenseur. Une terrasse offre un espace supplémentaire agréable. Le chauffage collectif est au gaz. Une place de parking est incluse. Commerces et établissements scolaires à proximité. Transports en commun accessibles avec plusieurs lignes de RER. Grands axes routiers proches.
< 50 A
51 à 90 B
91 à 150 C
151 à 230 D
231 à 330 E
331 à 450 F
> 450 G
Unité de mesure exprimé en KWhEP/m².an
< 5 A
6 à 10 B
11 à 20 C
21 à 35 D
36 à 55 E
56 à 80 F
> 80 G
Unité de mesure exprimé en kgegCO2/m².an
< 5 A
6 à 10 B
11 à 20 C
21 à 35 D
36 à 55 E
56 à 80 F
> 80 G
Unité de mesure exprimé en kgegCO2/m².an
< 50 A
51 à 90 B
91 à 150 C
151 à 230 D
231 à 330 E
331 à 450 F
> 450 G
Unité de mesure exprimé en KWhEP/m².an
Les informations sur les risques auxquels ce bien est exposé sont disponibles sur le site
Géorisques
https://www.georisques.gouv.fr
Enregistrez vos annonces préférées dans la liste de vos favoris.