🔔 Vous avez actuellement des candidatures en attente.



>
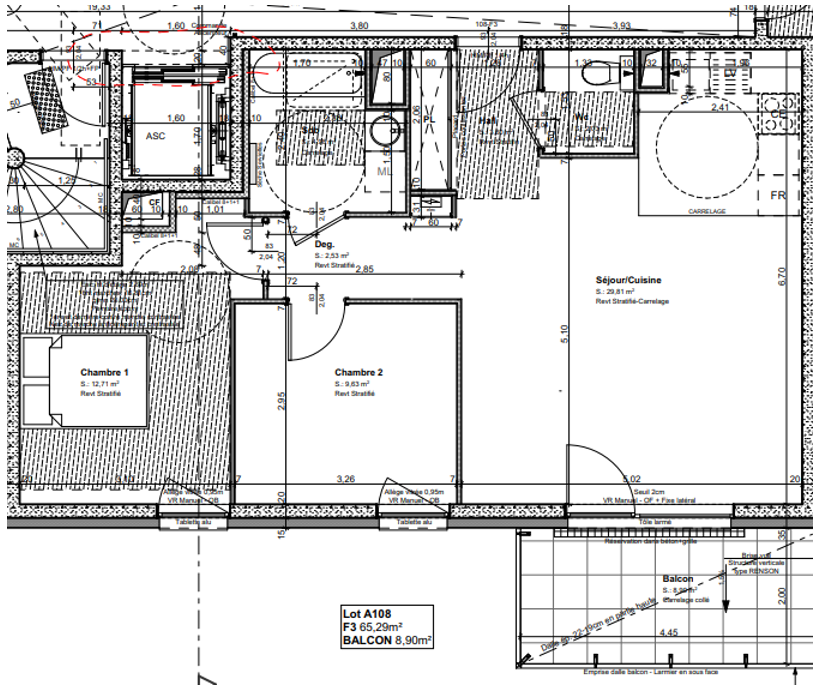
SANS FRAIS D'AGENCE NI HONORAIRES. A saisir logement dans programme neuf rue des Bateliers à Mulhouse. F3 à louer. Entrée avec placard, espace séjour / cuisine ouverte (non équipée), terrasse, 2 chambres, SDB avec baignoire, WC séparé. Chauffage et eau chaude collectif gaz. Parking inclus.
< 50 A
51 à 90 B
91 à 150 C
151 à 230 D
231 à 330 E
331 à 450 F
> 450 G
Unité de mesure exprimé en KWhEP/m².an
< 5 A
6 à 10 B
11 à 20 C
21 à 35 D
36 à 55 E
56 à 80 F
> 80 G
Unité de mesure exprimé en kgegCO2/m².an
< 5 A
6 à 10 B
11 à 20 C
21 à 35 D
36 à 55 E
56 à 80 F
> 80 G
Unité de mesure exprimé en kgegCO2/m².an
< 50 A
51 à 90 B
91 à 150 C
151 à 230 D
231 à 330 E
331 à 450 F
> 450 G
Unité de mesure exprimé en KWhEP/m².an
Les informations sur les risques auxquels ce bien est exposé sont disponibles sur le site
Géorisques
https://www.georisques.gouv.fr
Enregistrez vos annonces préférées dans la liste de vos favoris.
